Каминная топка Astov П2С 10057
4c0150d82b40
Доставка в Челябинск
Удобство оплаты
Почему звонить в Очаг уже сейчас?
- Единая цена по всей России
- Бесплатная доставка
- Понимаем любой бюджет
- Считаем ВСЕ варианты
- Инструкции и видео для Монтажа
- Доступно, Оперативно, Профессионально
- Более 2 000 монтажей за 17 лет
Примеры работ #Степан_Знает
Видео галерея
Описание
Характеристики
Общие
Производитель:
Страна-производитель:
Россия
Остекление:
Материал корпуса:
Материал топки:
- Шамот
Конструкция топки:
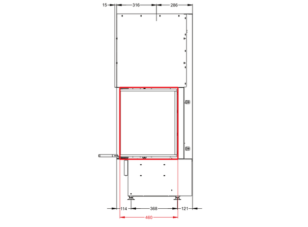
Боковое стекло:
Слева
Размеры
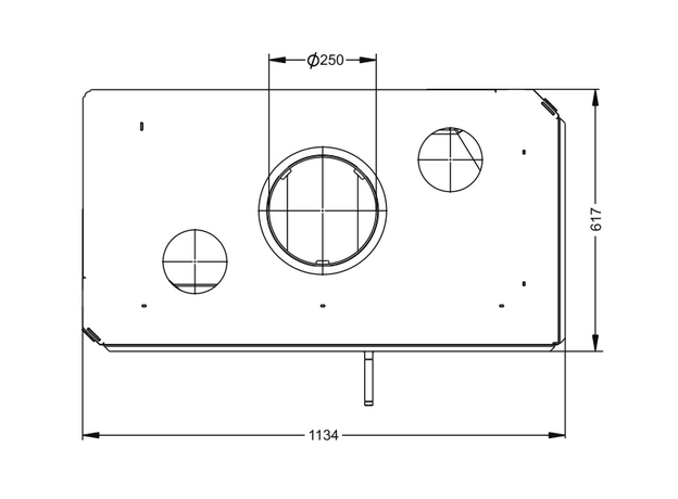
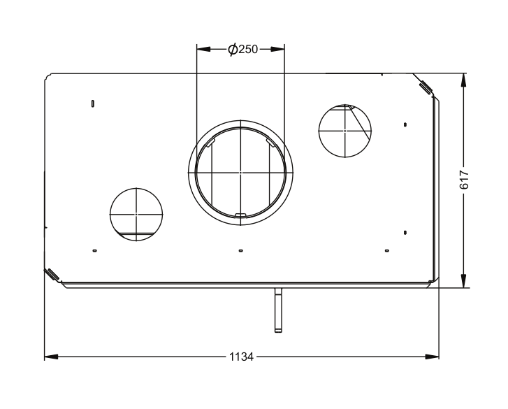
Диаметр дымохода:
250 мм
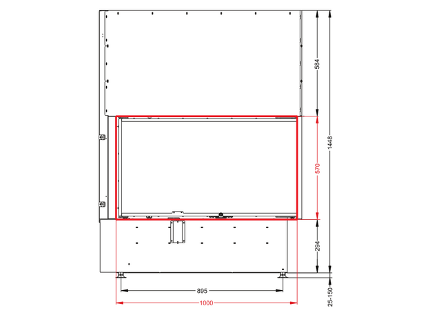
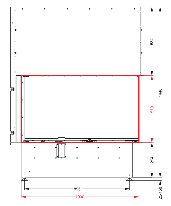
Общая ширина:
1000 мм
Общая глубина:
617 мм
Общая высота:
1473 мм
Общий вес:
410-475 кг
Высота рамки:
570 мм
Ширина рамки:
1000 мм
Производительность
Мощность:
10 кВт
КПД:
80%
Площадь отопления:
100 м²
Объем отопления:
250 м³
Использование для отопления:












