Каминная топка Lacunza Adour 500 ST
6d137f596b68
Доставка в Челябинск
Удобство оплаты
Почему звонить в Очаг уже сейчас?
- Единая цена по всей России
- Бесплатная доставка
- Понимаем любой бюджет
- Считаем ВСЕ варианты
- Инструкции и видео для Монтажа
- Доступно, Оперативно, Профессионально
- Более 2 000 монтажей за 17 лет
Примеры работ #Степан_Знает
Видео галерея
Описание
Характеристики
Общие
Производитель:
Lacunza
Страна-производитель:
Испания
Остекление:
Материал корпуса:
Материал топки:
- Вермикулит
Конструкция топки:
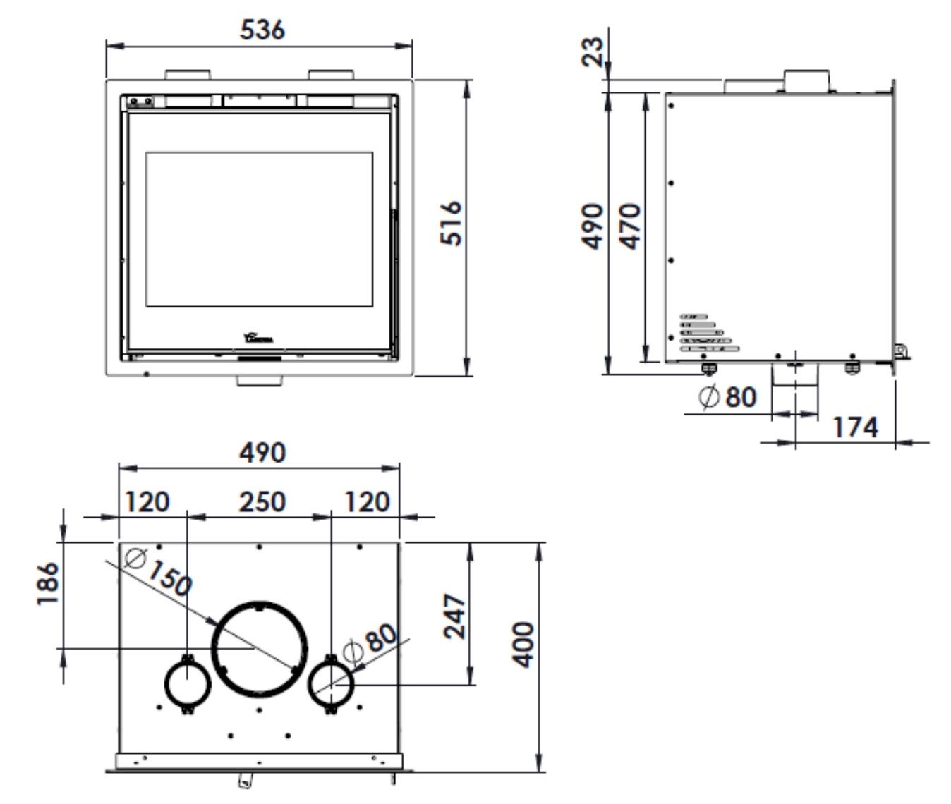
Размеры
Диаметр дымохода:
150 мм
Общая ширина:
490 мм
Общая глубина:
400 мм
Общая высота:
490 мм
Общий вес:
65 кг
Высота рамки:
235 мм
Ширина рамки:
404 мм
Производительность
Мощность:
5,5 кВт
КПД:
77%
Площадь отопления:
60 м²
Объем отопления:
150 м³
Использование для отопления:












