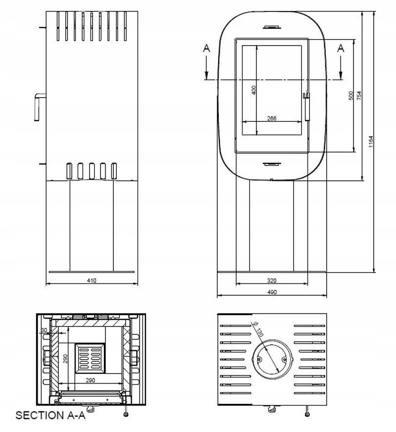
Печь-камин KFD Lidia
68b12dadb6ed
Доставка в Челябинск
Удобство оплаты
Почему звонить в Очаг уже сейчас?
- Единая цена по всей России
- Бесплатная доставка
- Понимаем любой бюджет
- Считаем ВСЕ варианты
- Инструкции и видео для Монтажа
- Доступно, Оперативно, Профессионально
- Более 2 000 монтажей за 17 лет
Примеры работ #Степан_Знает
Видео галерея
Описание
Характеристики
Общие
Производитель:
Страна-производитель:
Польша
Материал отделки:
Материал топки:
- Вермикулит
Тип печи:
Производительность
Мощность:
5,4 кВт
КПД:
82,7%
Площадь отопления:
60 м²
Объем отопления:
150 м³
Использование для отопления:












