Печь-камин La Nordica Sovrana Evo
d8aa84db84b2
Доставка в Челябинск
Удобство оплаты
Почему звонить в Очаг уже сейчас?
- Единая цена по всей России
- Бесплатная доставка
- Понимаем любой бюджет
- Считаем ВСЕ варианты
- Инструкции и видео для Монтажа
- Доступно, Оперативно, Профессионально
- Более 2 000 монтажей за 17 лет
Примеры работ #Степан_Знает
Видео галерея
Описание
Характеристики
Общие
Производитель:
Страна-производитель:
Италия
Материал отделки:
Материал топки:
- Чугун
Тип печи:
Размеры
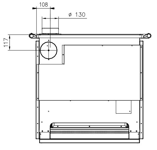
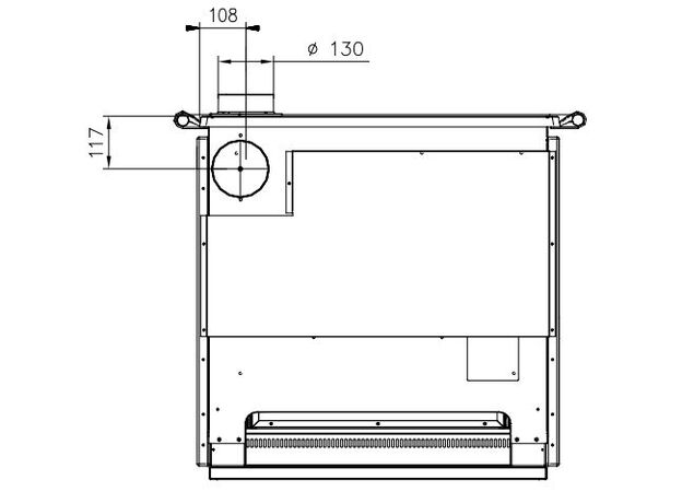
Диаметр дымохода:
130 мм
Общая ширина:
964 мм
Общая глубина:
641 мм
Общая высота:
848 мм
Общий вес:
130 кг
Производительность
Мощность:
7,5 кВт
КПД:
81%
Площадь отопления:
80 м²
Объем отопления:
200 м³
Использование для отопления:












